Any ‘line level’ source equipment can be connected to the audio inputs on the AXR (A1 to A3).
The diagram shows the basic connection of the AXR100D to a CD player using the A1 analog input and a pair of loudspeakers.
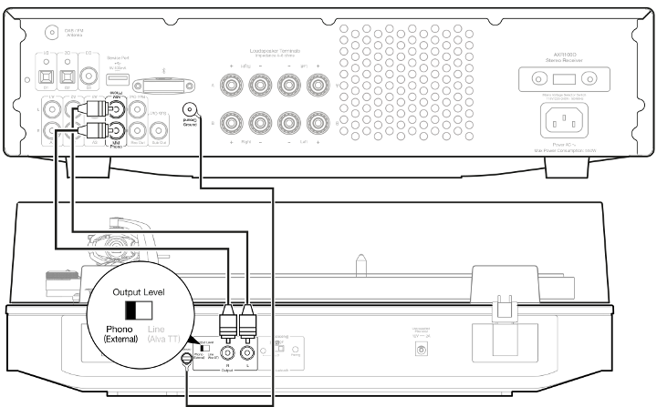
The diagram below shows the basic connection of the AXR100D to a turntable via the Phono input.
This unit has a built-in Phono preamplifier (Phono Stage), so if your turntable does not possess its own Phono Stage, you may connect the record player to the input on the rear of the unit marked 'Phono'.
If your turntable does have a built-in Phono stage or you are using an external version, you should connect to any of the other analog inputs, as the 'Phono' input may produce an unwanted distortion.
Note: Do not connect a non-phono source to the phono input.
The Sub Out is for connecting to the LFE/Sub input of an active subwoofer.
The diagram shows how to connect the AXR100D to an active subwoofer via the LFE/Sub input on the subwoofer.